20 kép
Eladó
Ház
Sorház
Délegyházán Eladó 5 szobás Sorházi Lakás
Délegyháza - Pontos cím érdeklődés után
85 000 000 Ft
(850 000 Ft/m²)
Azonnali válasz munkaidőben
5
Szoba
100 m²
Alapterület
450 m²
Telekterület
2019
Építés éve
Részletek
Referenciaszám
CD41006
Típus
Ház
Altípus
Sorház
Tranzakció
Eladó
Ár
85 000 000 Ft
Négyzetméterár
850 000 Ft/m²
Alapterület
100 m²
Telekterület
450 m²
Szobák
5
Hálószobák
3
Fürdőszobák
1
Emelet
9
Épület szintjei
1
Építés éve
2019
Övezet
Lakó övezet
Rendeltetés
Lakóingatlan
Közművek
Víz
Van
Gáz
Van
Elektromosság
Van
Leírás
Szeret kirándulni? Itt kiszakadhat a mókuskerékből!
Eladó Délegyházán a tavakhoz közeli családi otthon – nézzen szét, nem bánja meg! Az ingatlan hármas sorház szélén helyezkedik el egy 450 m2-es körbekerített telken.
Bruttó megépített méret 100 m2 ... Tulajdoni lap szerint lakás ... a hasznos méret 80 m2
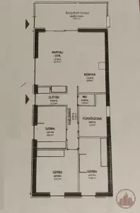
Helyiséglista: Előszoba: 4,34 m2, Közlekedő 3,33 m2, 3 db szoba (10,68 m2, 12,07 m2, 9 m2), Fürdőszoba: 7,23 m2, WC 1,40 m2, Konyha: 6,69 m2, Nappali/étkező: 25,55 m2,
Ezen felül ... beépített terasz 15 m2, különálló tároló 24 m2-es, fedett, szaletli 60 m2
Közművek: Víz, villany, gáz, csatorna helyett emésztő (7 m3)
Jogilag: Belterület, 2 tulajdonos, Hitelezhető
Műszaki jellemzők:
- 2019-es építés
- 30-as Porotherm tégla falazat, 10 cm grafitos szigetelés + lábazat szigetelés
- Fűtés: Riello kombi gáz kondenzációs kazán ... Szobákban lapradiátoros fűtés (melegburkolat) ... Hidegburkolatos helyiségekben padlófűtés
- Tető újszerű állapotú (20x20-as födémgerendák, 7,5x15-ös szarufák)
- Két rétegű műanyag nyílászárók, alu redőnnyel és szúnyoghálóval
- Villany 1x32 amper
- Külső műanyag párkány, belül nincs párkány
- Belmagasság mindenhol azonos
Hasznos információ:
• Beépített előszoba szekrény
• Fürdőszoba (mennyezetig csempézve, saját ablakkal, sarokkáddal, épített üvegajtós zuhannyal, kézmosóval, rejtett tartályos wc-vel, bidével, törölközőszárító radiátorral)
• Utólag beépített terasz – külön helyiségként használható (szoba, dolgozó, vállalkozás céljára is alkalmas)
• Kémény kiállás a nappali-étkezőben (kályhás fűtés)
• Konyha ( Beépített Whirlpool érintőpaneles villany főzőlap, Whirlpool süt, Whirlpool mosogatógép, egyállású mosogató, mosógép kiállás,
• Vízlágyító rendszer PH00 víz – vegyszer- és kemikália mentesített víz a teljes házban
• Beépített terasz műszaki tartalma (15 cm Ytong falazat, 19 cm kőzetgyapot szigetelés, 8 cm XPS lábazati szigetelés, Járólappal burkolt
Külső adottságok, extra lehetőségek:
- 60 m²-es fedett, térkövezett szaletli
- 24 m²-es különálló tároló (20 cm Ytong falazat, beton aljzat, lemeztető)
- Fúrt kút szivattyúval
- Nyugodt szomszédság
Elhelyezkedés: Délegyháza a tavak és kirándulóhelyek miatt az egyik legkedveltebb környék azoknak, akik természetközeli, mégis jól megközelíthető otthont keresnek. Vízparti séták, horgászati lehetőség, kerékpározás, csendes környezet – mindez karnyújtásnyira.
Ha egy élhető sokoldalúan használható otthont keres a tavak közelében, érdemes személyesen is megnézni.
Ha felkeltette érdeklődését ez az ingatlan, keressen minket bizalommal, és örömmel mutatjuk be a lehetőségeket személyesen is!
A Custom Dream Home teljes körű ügyintézéssel áll eladók és vevők rendelkezésére – ingatlanközvetítés szívvel-lélekkel, az Ön igényeire szabva.
Szolgáltatásaink:
- Ingyenes hiteltanácsadás, CSOK+, Babaváró és lakáshitel-ügyintézés pénzügyi szakértő bevonásával
- Díjmentes ingatlanérték-meghatározás
- Energetikai tanúsítvány készítés
- Ügyvédi és jogi tanácsadás kedvező áron
A megjelenő információk tájékoztató jellegűek.
Eladó Délegyházán a tavakhoz közeli családi otthon – nézzen szét, nem bánja meg! Az ingatlan hármas sorház szélén helyezkedik el egy 450 m2-es körbekerített telken.
Bruttó megépített méret 100 m2 ... Tulajdoni lap szerint lakás ... a hasznos méret 80 m2
Helyiséglista: Előszoba: 4,34 m2, Közlekedő 3,33 m2, 3 db szoba (10,68 m2, 12,07 m2, 9 m2), Fürdőszoba: 7,23 m2, WC 1,40 m2, Konyha: 6,69 m2, Nappali/étkező: 25,55 m2,
Ezen felül ... beépített terasz 15 m2, különálló tároló 24 m2-es, fedett, szaletli 60 m2
Közművek: Víz, villany, gáz, csatorna helyett emésztő (7 m3)
Jogilag: Belterület, 2 tulajdonos, Hitelezhető
Műszaki jellemzők:
- 2019-es építés
- 30-as Porotherm tégla falazat, 10 cm grafitos szigetelés + lábazat szigetelés
- Fűtés: Riello kombi gáz kondenzációs kazán ... Szobákban lapradiátoros fűtés (melegburkolat) ... Hidegburkolatos helyiségekben padlófűtés
- Tető újszerű állapotú (20x20-as födémgerendák, 7,5x15-ös szarufák)
- Két rétegű műanyag nyílászárók, alu redőnnyel és szúnyoghálóval
- Villany 1x32 amper
- Külső műanyag párkány, belül nincs párkány
- Belmagasság mindenhol azonos
Hasznos információ:
• Beépített előszoba szekrény
• Fürdőszoba (mennyezetig csempézve, saját ablakkal, sarokkáddal, épített üvegajtós zuhannyal, kézmosóval, rejtett tartályos wc-vel, bidével, törölközőszárító radiátorral)
• Utólag beépített terasz – külön helyiségként használható (szoba, dolgozó, vállalkozás céljára is alkalmas)
• Kémény kiállás a nappali-étkezőben (kályhás fűtés)
• Konyha ( Beépített Whirlpool érintőpaneles villany főzőlap, Whirlpool süt, Whirlpool mosogatógép, egyállású mosogató, mosógép kiállás,
• Vízlágyító rendszer PH00 víz – vegyszer- és kemikália mentesített víz a teljes házban
• Beépített terasz műszaki tartalma (15 cm Ytong falazat, 19 cm kőzetgyapot szigetelés, 8 cm XPS lábazati szigetelés, Járólappal burkolt
Külső adottságok, extra lehetőségek:
- 60 m²-es fedett, térkövezett szaletli
- 24 m²-es különálló tároló (20 cm Ytong falazat, beton aljzat, lemeztető)
- Fúrt kút szivattyúval
- Nyugodt szomszédság
Elhelyezkedés: Délegyháza a tavak és kirándulóhelyek miatt az egyik legkedveltebb környék azoknak, akik természetközeli, mégis jól megközelíthető otthont keresnek. Vízparti séták, horgászati lehetőség, kerékpározás, csendes környezet – mindez karnyújtásnyira.
Ha egy élhető sokoldalúan használható otthont keres a tavak közelében, érdemes személyesen is megnézni.
Ha felkeltette érdeklődését ez az ingatlan, keressen minket bizalommal, és örömmel mutatjuk be a lehetőségeket személyesen is!
A Custom Dream Home teljes körű ügyintézéssel áll eladók és vevők rendelkezésére – ingatlanközvetítés szívvel-lélekkel, az Ön igényeire szabva.
Szolgáltatásaink:
- Ingyenes hiteltanácsadás, CSOK+, Babaváró és lakáshitel-ügyintézés pénzügyi szakértő bevonásával
- Díjmentes ingatlanérték-meghatározás
- Energetikai tanúsítvány készítés
- Ügyvédi és jogi tanácsadás kedvező áron
A megjelenő információk tájékoztató jellegűek.
Érdekli ez az ingatlan?
Segítünk megválaszolni minden kérdését – hívjon vagy írjon nekünk!
Jellemzők / Extrák
Amerikai konyha
Beépített szekrények
Belső kert
Csendes környék
Étkező
Fúrt kút
Fűtött
Gépesített
Jó közlekedés
Kerékpártároló
Különnyíló szobák
Melléképület
Padlófűtés
Parketta
Redőny
Riasztó
Saját tároló
Szigetelt épület
Tárolószoba
Helyszín
Gyakran ismételt kérdések
Mekkora ez az ingatlan?
Az ingatlan alapterülete 100 m², a telekterület 450 m².
Mennyibe kerül ez az ingatlan?
Az ár 85 000 000 Ft (850 000 Ft/m²).
Hol található ez az ingatlan?
Az ingatlan Délegyháza (Pest megye) területén található.
Hány szobás az ingatlan?
Az ingatlan 5 szobás, ebből 3 hálószoba.
Hasonló ingatlanok
168 999 000 Ft
Délegyháza központjában – Családi otthon és üzlethelyiség egyben! Ugye megnézi velem?
Délegyháza